Sight glass Performance features Sight glass is often used as a main accessory in piping systems of industries such as petroleum industries, chemical, medicine and foodstuff production and paper making industries, to observe medium flow and reactions such as liquid, gas and steaming vapor for the purpose of monitoring production process and preventing accidents.
Denotation of product types
Illustration of denotation Select a single pressure flange-connected sight glass with swing-plate internal structure, nominal pressure of flange 0.6 Mpa, nominal diameter 80mm and low carbon steel main body material as an example, the denotation symbol is SG-II-P-0.6-80/C. Table 1
|
Type |
Clamping type |
Single pressure type |
Thread type |
Tubular type |
Floating ball type |
frame type (Clamping type) |
Frame type (single pressure type) |
Pressure container type |
others |
|
Connecting modes |
Flange |
Flange |
Screw |
Flange |
Screw |
Flange |
Flange |
Flange |
Without neck |
With neck |
Flange |
|
code |
I |
II |
III |
V |
Va |
Vb |
VI |
VII |
VIIa |
VIIb |
Ixa,b | Table 2
|
Structures |
Straight necking type |
Necking down type |
Inclined necking type |
Impeller type |
Swing plate type |
Floating-ball type |
|
Code |
A |
B |
C |
D |
P |
E | Note: Connecting modes in the table mainly refer to I. II, and III. Product specifications and technical parameters(1) SG-I Clamping type sight glass
|
DN |
Window diameter W |
Pipe inradium D |
H |
L |
Application case |
|
PN≤1.6 |
PN≤2.5 |
|
8 |
58 |
40 |
75 |
140 |
160 |
PN≤2.5Mpa Working pressure≤1.0MPa Working temperature :0-180℃ |
|
10 |
58 |
40 |
75 |
140 |
160 |
|
15 |
58 |
40 |
75 |
140 |
160 |
|
20 |
68 |
50 |
85 |
160 |
180 |
|
25 |
68 |
50 |
85 |
160 |
180 |
|
40 |
78 |
60 |
115 |
180 |
200 | (2)SG-II Single-pressure sight glass
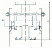
|
DN |
Window diameter W |
Pipe inradium D |
PN0.6 |
PN1.0、PN1.6 |
PN2.5 |
|
H |
L |
H |
L |
H |
L |
|
50 |
80/80 |
65/50 |
200 |
220 |
200 |
220/250 |
210 |
250/270 |
|
65 |
102/100 |
80/102 |
230 |
250 |
230 |
250/270 |
240 |
270/320 |
|
80 |
102/100 |
102/102 |
245 |
270 |
245 |
270/270 |
270 |
320/380 |
|
100 |
125/125 |
125/125 |
330 |
320 |
330 |
320/320 |
360 |
360/420 |
|
125 |
150/150 |
150/150 |
340 |
360 |
360 |
370/400 |
400 |
410/480 |
|
150 |
200/200 |
200/200 |
350 |
420 |
420 |
430/440 |
440 |
480/550 | Note: Sight glass above / in the figure is swing plate glass with working pressure<1.0 MPa; working temperature<0-180OC (3)SG-III Full threaded sight glass
|
DN |
Window diameter W |
ScrewM |
H |
L |
Application case |
|
PN≤1.6 |
PN≤2.5 |
|
6 |
58 |
G1/4 |
75 |
140 |
160 |
PN≤2.5 Mpa Working pressure≤1.0MPa Working temperature: 0-180℃ |
|
10 |
58 |
G3/8 |
75 |
140 |
160 |
|
15 |
58 |
G1/2 |
75 |
140 |
160 |
|
20 |
68 |
G3/4 |
85 |
160 |
180 |
|
25 |
68 |
G1” |
85 |
160 |
180 |
|
40 |
78 |
G1½” |
115 |
180 |
200 | (4)SG-IV Tubular sight glass
|
DN |
PN |
H |
H1 |
H2 |
Glass tube diameter |
|
Diameter |
Thickness |
|
20 |
1.0 |
250 |
78 |
94 |
ф50 |
4 |
|
25 |
1.0 |
250 |
78 |
94 |
ф50 |
4 |
|
40 |
1.0 |
250 |
78 |
94 |
ф60 |
5 |
|
50 |
1.0 |
250 |
78 |
94 |
ф78 |
5 |
|
65 |
1.0 |
250 |
78 |
94 |
ф90 |
5 | (5)SG-Va thread-connection and float-ball sight glass
|
DN |
d |
D1 |
D |
L |
H |
Ballф |
Drawing no. |
|
20 |
16 |
G3/4” |
38 |
120 |
70 |
18 |
HGS0-128-01-1~4 |
|
25 |
16 |
G1” |
40 |
120 |
70 |
18 |
HGS0-128-01-1~4 |
|
32 |
16 |
G1¼” |
50 |
124 |
76 |
18 |
HGS0-128-01-1~4 |
|
40 |
16 |
G1½” |
56 |
124 |
80 |
18 |
HGS0-128-01-1~4 |
|
50 |
16 |
G2” |
66 |
124 |
85 |
18 |
HGS0-128-01-1~4 | Notes: PN≤0.6Mpa;working pressure≤0.3 Mpa;working temperature≤180OC (6)SG-Vb flange-connection and float-ball sight glass
|
DN |
d |
D1 |
D |
L |
H |
BallΦ |
Drawing no. |
|
65 |
65 |
130 |
160 |
340 |
260 |
40 |
HGS0-128-01-1~4 |
|
80 |
80 |
150 |
185 |
340 |
270 |
40 |
HGS0-128-01-1~4 |
|
100 |
100 |
170 |
205 |
340 |
277 |
40 |
HGS0-128-01-1~4 |
|
125 |
125 |
200 |
235 |
340 |
290 |
40 |
HGS0-128-01-1~4 |
|
150 |
150 |
255 |
260 |
340 |
302 |
40 |
HGS0-128-01-1~4 | Notes: PN≤0.6Mpa;working pressure≤0.3 Mpa;working temperature≤180OC (7)SG-VI frame clamping sight glass
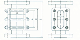
|
DN |
W |
A |
H |
B |
L |
Application case |
|
PN≤1.6 |
PN≤2.5 |
|
15 |
18 |
75 |
85 |
110 |
200 |
200 |
PN≤2.5Mpa Working pressure≤1.0 Mpa; Working temperature: 0-180OC |
|
20 |
18 |
75 |
85 |
110 |
200 |
200 |
|
25 |
22 |
80 |
95 |
120 |
210 |
210 |
|
40 |
30 |
90 |
125 |
120 |
210 |
230 | (8)SG-VII frame-type single pressure sight glass
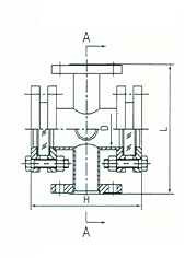
|
DN |
W |
A |
H |
B |
L |
Application case |
|
PN≤1.6 |
PN≤2.5 |
|
50 |
30 |
90 |
140 |
120 |
210 |
250 |
PN≤2.5Mpa Working pressure≤1.0 Mpa; Working temperature:0-180OC |
|
65 |
30 |
90 |
155 |
120 |
220 |
250 |
|
80 |
35 |
100 |
180 |
120 |
230 |
250 |
|
100 |
35 |
100 |
205 |
120 |
230 |
260 |
|
125 |
40 |
110 |
235 |
130 |
260 |
290 |
|
150 |
40 |
110 |
260 |
130 |
260 |
290 | (9)SG-VIIIa container sight glass
|
DN |
PN |
D |
D1 |
b1 |
B2 |
≈H |
Bolts |
|
n |
d |
|
50 |
1.0 |
130 |
100 |
34 |
22 |
79 |
6 |
M12 |
|
1.6 |
130 |
100 |
34 |
24 |
79 |
6 |
M12 |
|
2.5 |
130 |
100 |
34 |
26 |
84 |
6 |
M12 |
|
80 |
1.0 |
160 |
130 |
36 |
24 |
91 |
8 |
M12 |
|
1.6 |
160 |
130 |
36 |
26 |
91 |
8 |
M12 |
|
2.5 |
160 |
130 |
36 |
28 |
91 |
8 |
M12 |
|
100 |
1.0 |
200 |
165 |
40 |
26 |
100 |
8 |
M16 |
|
1.6 |
200 |
165 |
40 |
28 |
105 |
8 |
M16 |
|
125 |
1.0 |
225 |
190 |
40 |
28 |
105 |
8 |
M16 |
|
150 |
1.0 |
250 |
215 |
40 |
30 |
110 |
12 |
M16 | Note: temperature 0 - 180 ℃ (10)SG-VIIb container with sight glass
|
DN |
PN |
D |
D1 |
B1 |
B2 |
dh×S |
H |
≈H |
Bolts | |
n |
d | |
50 |
1.0 |
130 |
100 |
34 |
22 |
57×3.5 |
70 |
79 |
6 |
M12 | |
1.6 |
130 |
100 |
34 |
24 |
57×3.5 |
70 |
79 |
6 |
M12 | |
2.5 |
130 |
100 |
34 |
26 |
57×3.5 |
70 |
84 |
6 |
M12 | |
80 |
1.0 |
160 |
130 |
36 |
24 |
89×4 |
70 |
86 |
8 |
M12 | |
1.6 |
160 |
130 |
36 |
26 |
89×4 |
70 |
91 |
8 |
M12 | |
2.5 |
160 |
130 |
36 |
28 |
89×4 |
70 |
96 |
8 |
M12 | |
100 |
1.0 |
200 |
165 |
40 |
26 |
108×4 |
80 |
100 |
8 |
M16 | |
1.6 |
200 |
165 |
40 |
28 |
108×4 |
80 |
105 |
8 |
M16 | |
125 |
1.0 |
225 |
190 |
40 |
28 |
133×4 |
80 |
105 |
8 |
M16 | |
150 |
1.0 |
250 |
215 |
40 |
30 |
159×4.5 |
80 |
110 |
12 |
M16 | Notes: the container refers to HGJ501-501-86 standard with working temperature 0-180OC (11)SG-IXa single-pressure reducing sight glass
|
DN1×DN2 |
L |
D |
H |
Application case |
|
PN0.25 |
PN0.6 |
|
25×32 |
260 |
95 |
226 |
234 |
Working temperature:0-180℃ |
|
40×50 |
320 |
140 |
226 |
278 |
|
50×65 |
320 |
140 |
226 |
278 |
|
65×80 |
360 |
165 |
300 |
308 |
|
80×100 |
360 |
165 |
300 |
308 | (12)SG-IXb single-pressure reducing sight glass
|
DN |
L |
D |
H |
|
I |
II |
III |
PN0.25 |
PN0.6 |
|
25 |
40 |
40 |
260 |
95 |
226 |
234 |
|
25 |
50 |
50 |
320 |
140 |
266 |
278 |
|
25 |
65 |
65 |
320 |
140 |
266 |
278 |
|
40 |
80 |
80 |
360 |
165 |
300 |
308 |
|
40 |
100 |
80 |
360 |
165 |
300 |
308 |
|
25 |
40 |
50 |
320 |
140 |
266 |
278 |
|
40 |
50 |
65 |
320 |
140 |
266 |
278 |
|
50 |
65 |
80 |
360 |
165 |
300 |
308 |
|
50 |
80 |
100 |
360 |
165 |
300 |
308 | Note: temperature 0 - 180 ℃
|
|